夜上海论坛上海品茶网,重庆水疗荤的洗浴位置及价格,南京会所spa论坛

咨询服务热线:

186-6370-1712

您现在的位置:网站首页>全环保型混凝土搅拌站(楼)

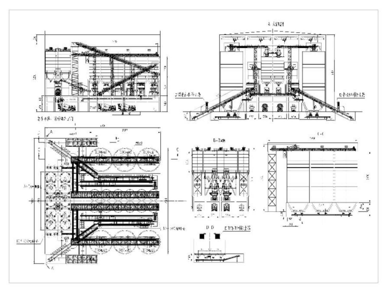
全环保型混凝土搅拌站(楼)

全环保型混凝土搅拌站(楼)

       环保型混凝土搅拌站具有环境友好、节约资源、外观与内部环保性能内外兼修的特点。

全环保型混凝土搅拌站(楼)

       1、环境友好

       环保型混凝土搅拌楼实现工厂式全封装,从外观上看即为一个全封闭的现代化工厂,无扬尘排放、无噪音污染周边环境;废水、废料循环使用,无废水、废渣排放;造型大气、美观,有周边环境相协调;规划合理,厂区绿化率高。与普通搅拌站相比,真正做到了环境友好,在环保性能方面有质的飞跃。

       2、节约资源

       环保型混凝土搅拌站楼设备低碳节能、生产效率高;废水、废渣做到循环利用;易损件使用寿命长;设备无跑、冒、滴、漏等现象;混凝土质量稳定,合格率高。

       3、整体全封闭外观与内部环保性能内外兼修

全环保型混凝土搅拌站(楼)

       目前国内已有一定数量的搅拌设备用户意识到了搅拌站的环保问题,并在不同地区建成了都加全封闭型搅拌楼,但需指出的是,并不是全封闭搅拌楼就是环保型搅拌楼,也不是设备具有环保功能就是环保站;真正的环保必须是全封装和设备本身优良的环保性能的结合体,同时还要做到造型美观。

       环保型混凝土搅拌设备的优势

       1、搅拌楼效率更高、更节能;搅拌楼骨料在主楼顶部称量,免去了皮带输送的时间,从而有效的保证了生产周期,进而保证了生产效率;

       2、砂石料可分开下料,可实现裹浆法生产混凝土,提高混凝土强度;

       3、设备对场地适用性强;

       4、设备布置灵活性强;

       5、设备的前封闭封装更方便。

全环保型混凝土搅拌站(楼)主要技术参数表


项目单位HZS120HZS180HZS240HZS270
生产率m3/h120180240270
主机出料容量L2000300040004500
主机进料容量L3200480060006750
骨料称上限称量值Kg4×30004×40004×60004×6000
水泥称上限称量值Kg1200180024002400
粉煤灰称上限称量值Kg50080012001200
水称上限称量值Kg60080012001200
液体外加剂称上限称量值Kg50100100100
搅拌功率Kw2×372×552×752×75
整机功率Kw20027036003600
卸料高度m4.24.24.24.2
骨料计量精度%±2±2±2±2
水计量精度%±1±1±1±1
水泥、粉尘灰计量精度%±1±1±1±1
外加剂计量精度%±1±1±1±1


混4

全环保型混凝土搅拌站(楼)
全环保型混凝土搅拌站(楼) 2021-8-16 本文被阅读 14584 次
山东冠成机械有限公司 咨询热线:

186-6370-1712

联系我们

销售总经理:18663701712

服 务  热 线:18505380918 

电话:0538-8852777

网  址:m.crntk.cn

公司地址:山东省济南市市中区南辛庄西路249号

工厂地址:山东省泰安市岱岳区青春创业园晶华路南首   

关注微信公众号
山东冠成机械有限公司        鲁ICP备16007360号-2                公示信息
主站蜘蛛池模板: 东莞市| 南江县| 奈曼旗| 荣成市| 正安县| 临湘市| 额敏县| 桐乡市| 监利县| 建湖县| 齐河县| 高陵县| 巴中市| 区。| 浙江省| 临猗县| 新化县| 黄山市| 长武县| 绵竹市| 济宁市| 仙居县| 汕头市| 邯郸市| 新巴尔虎右旗| 安庆市| 高淳县| 宜丰县| 新民市| 大同县| 宁南县| 咸阳市| 永和县| 新竹县| 绍兴县| 西安市| 积石山| 偏关县| 通辽市| 普兰店市| 顺平县|